$600,490 - $615,490
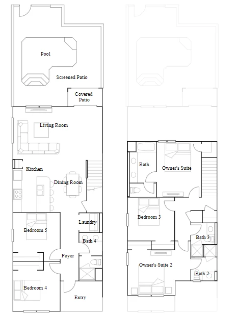
Este townhouse de dos pisos es el más grande de la colección. El primer piso cuenta con una sala de estar abierta con una puerta corrediza que conduce al patio cubierto y a la piscina privada. Hay dos dormitorios en el primer piso y tres en el segundo, incluidas las suites dobles.
Los precios y las características pueden variar y están sujetos a cambios. Las fotos son solo para fines ilustrativos.
Al continuar, usted acepta recibir llamadas y mensajes de texto al número que proporcionó, incluido el marketing por marcador automático, voz pre-grabada y/o artificial, ademas de correos electrónicos de ubicatucasa.com y otros sobre su consulta y otros asuntos asuntos relacionados con el hogar, pero no como una condición de cualquier compra. También acepta nuestros Términos de Uso y nuestra Política de privacidad con respecto a la información relacionada con usted. Este consentimiento se aplica incluso si está en una lista de No llamar corporativa, estatal o nacional. Leer mas