$364,763 - $364,763
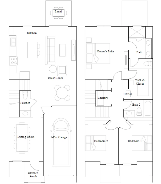
Este townhouse de dos pisos tiene un diseño cálido que es excelente para relajarse o entretener a los invitados. La puerta de entrada conduce a una amplia sala flexible o comedor, mientras que más abajo en el pasillo se encuentra la cocina de concepto abierto y la Gran Sala con un lanai cubierto adjunto. Arriba, dos dormitorios comparten un baño en el pasillo cerca del frente, mientras que la suite del propietario está escondida en la parte trasera con un vestidor y un baño completo.
Los precios y las características pueden variar y están sujetos a cambios. Las fotos son solo para fines ilustrativos.
Al continuar, usted acepta recibir llamadas y mensajes de texto al número que proporcionó, incluido el marketing por marcador automático, voz pre-grabada y/o artificial, ademas de correos electrónicos de ubicatucasa.com y otros sobre su consulta y otros asuntos asuntos relacionados con el hogar, pero no como una condición de cualquier compra. También acepta nuestros Términos de Uso y nuestra Política de privacidad con respecto a la información relacionada con usted. Este consentimiento se aplica incluso si está en una lista de No llamar corporativa, estatal o nacional. Leer mas